設備
角部屋
地図
詳細情報
| 間取り詳細 | テナント | ||
|---|---|---|---|
| 構造 | 鉄骨造地上7階 | ||
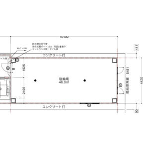
| 階建 | 1階部分 | ||
| 総戸数 | 13戸 | ||
| 築年月 | 2027年03月 | ||
| 駐車場 |
なし |
||
| 現況 | 建築中 | ||
| 入居可能時期 | 2026年3月上旬 | ||
| 取引態様 | 一般媒介 | ||
| 契約期間 | 普通借家2年間 | ||
| 保険 | 保険要加入 | ||
| ほか諸費用 | 更新事務手数料:33,000円2年毎/別途消費税 |
||
| 備考 |
2025年3月 竣工予定 スケルトン仕様 |
||
この物件へのお問い合わせはこちら
お電話またはメールにて、いつでもお気軽にお問い合わせください。
お問い合わせの際に「IZUMI LEAD SQUARE S1号室」もしくは「お部屋ID:9031566」とお伝えいただくとスムーズです。






